沖縄の不動産(売戸建)
沖縄の不動産(売戸建)
沖縄不動産特集! 売戸建
![]()
●所在地/北谷町桑江494番地
■ 価格:3,170万円
●土 地/230.97㎡ : 69.87坪
●建 物/82.50㎡ : 24.96坪
★オール洋間です!!
★閑静豊かな住宅街
■物件概要
●土地権利/所有権 ●地目/宅地 ●都市計画/非線引 ●国土法/届出不要 ●用途地域/第一種低層 ●建ペイ率/50% ●容積率/100% ●条例/北谷町景観計画 ●建物構造/鉄筋コンクリートブロック造 陸屋根 平屋建 ●築年月/昭和59年7月 ●引渡/相談 ●取引/仲介
![]()
●所在地/沖縄市安慶田1丁目156
■ 価格:780万円
●専有面積 /58.74㎡ : 17.76坪
●バルコニー /18.71㎡ : 5.66 坪
★高台で見晴らし良し!!
★買い物便利な地域です。
■物件概要
●土地権利/所有権 ●地目/宅地 ●都市計画/非線引 ●国土法/届出不要 ●所在階/3階 ●用途地域/第一種住居 ●間取り/2LDK ●駐車場/1台 ●管理状態/自主管理 ●建物構造/鉄筋コンクリートブロック造 陸・コンクリート屋根 3階建て ●築年月/昭和60年6月 ●管理費用/ ●修繕積立金/ ●引渡/相談 ●取引/仲介
![]()
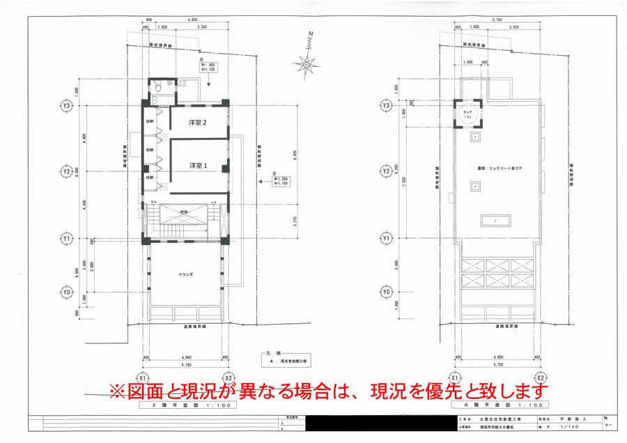
●所在地/浦添市沢岻一丁目25-3
■ 価格:3,350万円
●土 地/169.53㎡ : 51.28坪
●建 物/114.22㎡ : 34.55坪
★閑静な住宅地のキレイな建物です。
★買い物に便利!大型スーパー近く。
■物件概要
●土地権利/所有権 ●地目/宅地 ●都市計画/市街化区域 ●国土法/届出不要 ●用途地域/第1種低層住宅 ●建ペイ率/50% ●容積率/100% ●条例/ ●建物構造/鉄筋コンクリート造 陸屋根 2階建て ●築年月/平成18年3月 ●引渡/相談 ●取引/仲介
![]()
●所在地/沖縄市安慶田一丁目155番2
■ 価格:6,800万円
●土 地/517.93㎡ : 156.67坪
●建 物/489.54㎡ : 148.08坪
★2方道路で駐車場2面有り。各部屋並列で2台付き。
★キレイな建物、買い物等便利な地域です。
■物件概要
●土地権利/所有権 ●地目/宅地 ●都市計画/未線引き区域 ●国土法/届出不要 ●用途地域/第1種住居専用地域 ●建ペイ率/60% ●容積率/200% ●条例/ ●建物構造/木造スレート葺 陸屋根 3階建て ●築年月/平成22年5月 ●引渡/即時 ●取引/仲介
![]()
●所在地/うるま市字川崎489番1
■ 価格:1,700万円
●土 地/222.77㎡ : 67.38坪
●建 物/ 86.54㎡ : 26.17坪
★間口広々。お手頃価格です。
★前面道路拡張工事中です。
■物件概要
●土地権利/所有権 ●地目/宅地 ●都市計画/未指定 ●国土法/届出不要 ●用途地域/無指定地域 ●建ペイ率/60% ●容積率/200% ●条例/うるま市景観条例 ●建物構造/コンクリートブロック造 陸屋根 平屋建て ●築年月/平成7年4月新築 ●引渡/相談 ●取引/仲介
![]()
●所在地/嘉手納町屋良1丁目17番3
■ 価格:4,380万円
●土 地/245.22㎡ : 74.17坪
●建 物/309.82㎡ : 93.72坪
★屋良小学校近く。完全2世帯住宅
★閑静な住宅地のキレイな建物です。
■物件概要
●土地権利/所有権 ●地目/宅地 ●都市計画/未指定 ●国土法/届出不要 ●用途地域/第2種中高層住居地域 ●建ペイ率/60% ●容積率/200% ●建物構造/鉄筋コンクリートブロック造 陸屋根 3階建 ●築年月/平成6年8月新築 ●引渡/相談 ●取引/仲介
★1階部分/店舗・トイレ付き/18坪
★2階部分/居宅/37.61坪の4LDK
★3階部分/居宅/33.06坪の4LDK
◎屋根付き駐車場広々で、5~6台OK
![]()
●所在地/うるま市石川伊波404番29 外1筆
■ 価格:4,750万円
●土 地/265.62㎡ : 80.35坪
●建 物/211.80㎡ : 60.06坪
★金武湾を一望できる高台です。
★完全2世帯住宅です。
★1階/33坪の2LDK・2階/30坪の3LDK
■物件概要
●土地権利/所有権 ●地目/宅地 ●都市計画/未指定 ●国土法/届出不要 ●用途地域/第2種住居専用地域 ●建ペイ率/60% ●容積率/200% ●条例/うるま市景観条例 ●建物構造/鉄筋コンクリート造 陸屋根 2階建て ●築年月/平成14年11月新築 ●引渡/相談 ●取引/仲介







